Проект бани из бруса БП-75 (75 М.КВ.)

Построим баню из бруса по всей России

Проект бани из бруса с терассой

Ищете идеальное место для отдыха и оздоровления? Баня из бруса от Briarey — это то, что вам нужно!

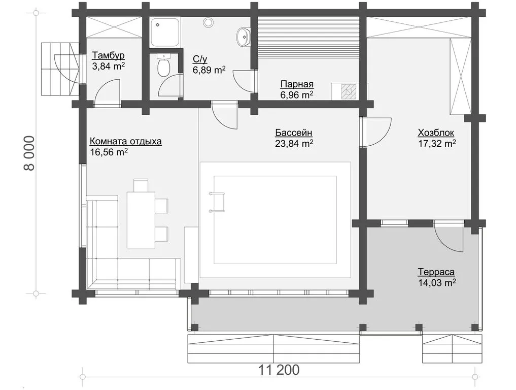
Представляем проект бани из бруса БП-75. Это одноэтажное строение общей площадью 75 квадратных метров и размерами 8 х 12,5 метров. Высота первого этажа составляет 2,8 метра, что обеспечивает комфортное пространство для отдыха.

Почему стоит выбрать баню из бруса?

  • Экологичность. Мы используем только натуральные материалы, которые не выделяют вредных веществ при нагревании.
  • Долговечность. Наши бани прослужат вам долгие годы, сохраняя свой первоначальный вид и функциональность.
  • Эстетика. Бани из бруса выглядят стильно и современно, они станут украшением вашего участка.

Briarey использует только качественные материалы для строительства бань. Мы тщательно следим за каждым этапом производства, чтобы гарантировать долговечность и надёжность наших построек. Наши специалисты имеют богатый опыт работы с деревом и знают все тонкости этого ремесла.

Позвольте себе насладиться комфортом и уютом настоящей русской бани!

Удалить товар

Вы точно хотите удалить выбранный товар? Отменить данное действие будет невозможно.