Проект дома из бруса Д-180 (135 м.кв.)

Построим дом из бруса по всей России

Проект одноэтажного дома из бруса с терассой

Проект дома из бруса Д-180: уютное одноэтажное жилье с террасой

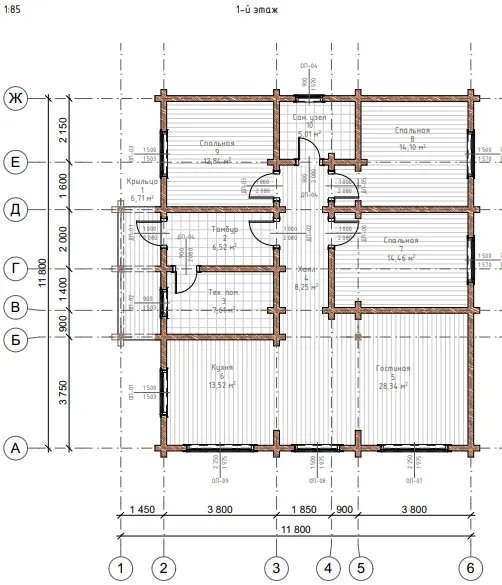
Представляем вашему вниманию проект Д-180 – современный одноэтажный дом из высококачественного бруса. Общая площадь дома составляет 136 м², при этом жилая площадь достигает 118 м².

Ключевые особенности проекта:
• Просторное одноэтажное строение
• Комфортная терраса для отдыха
• Оптимальная планировка помещений
• Эффективное использование пространства

Преимущества дома из бруса Д-180:

  • Удобная планировка без лестниц
  • Просторная терраса для летнего отдыха
  • Отличная вентиляция благодаря деревянным конструкциям
  • Естественная теплоизоляция в холодное время года
  • Здоровый микроклимат в помещениях

Проект включает:
• Функциональную планировку комнат
• Продуманную систему коммуникаций
• Уютную террасу
• Рациональное зонирование пространства

Компания Briarey гарантирует:
• Качественное строительство “под ключ”
• Использование отборного бруса
• Строгое соблюдение технологий
• Профессиональный подход к каждому этапу работ
• Долгосрочные гарантии на строительство

Строительство дома по проекту Д-180 – это оптимальное решение для семьи, предпочитающей одноэтажное жилье с удобной планировкой. Просторная терраса станет любимым местом для отдыха и проведения времени на свежем воздухе.

Закажите расчет стоимости строительства дома из бруса по проекту Д-180 прямо сейчас! Наши специалисты предоставят подробную информацию о проекте и помогут воплотить ваши идеи в реальность.

Доверьте строительство вашего будущего дома профессионалам Briarey – мы создаем качественные дома из бруса в Москве и области, учитывая все ваши пожелания и требования к современному загородному жилью.

Удалить товар

Вы точно хотите удалить выбранный товар? Отменить данное действие будет невозможно.