Проект дома из бруса ДБ-15 (310 кв.м.)

Построим дом из бруса по всей России

Проект двухэтажного дома из бруса

Проект дома из бруса ДБ-15 (310 м²): простор и комфорт для большой семьи

Мечтаете о просторном и уютном доме, где каждому члену семьи будет достаточно места для жизни и отдыха? Проект ДБ-15 от компании «Бриарей» — это идеальное решение для тех, кто ценит комфорт, качество и надёжность.

Почему стоит выбрать проект ДБ-15?

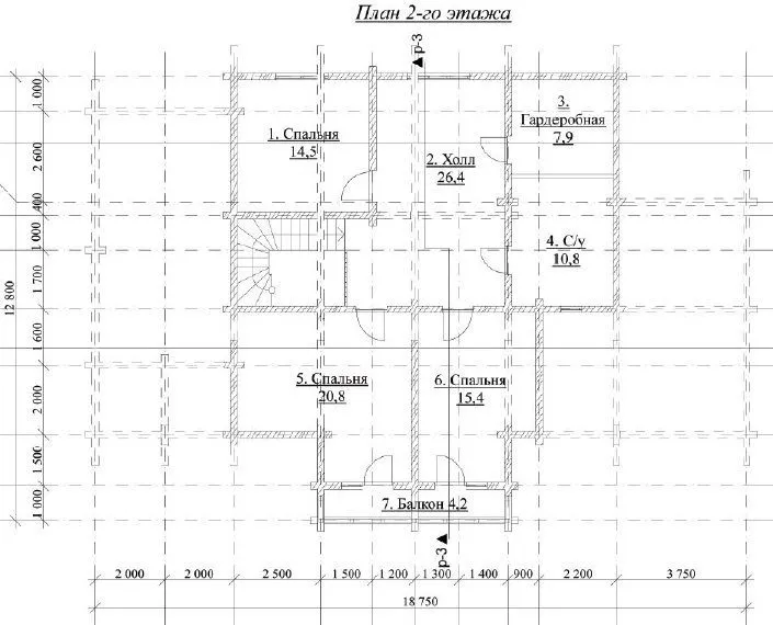
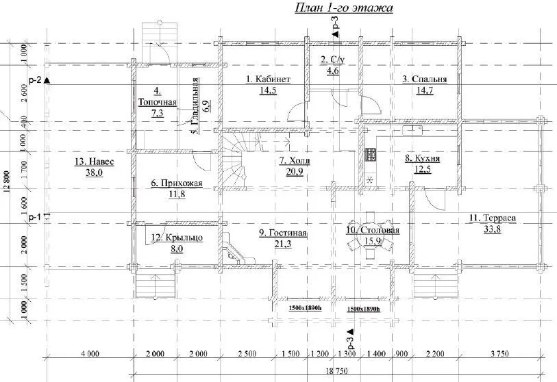
  • Общая площадь 310 м²: просторный дом, который предоставляет достаточно места для жизни, отдыха и приёма гостей.
  • Жилая площадь 117 м²: уютные и светлые жилые помещения, созданные для комфорта и отдыха.
  • Двухэтажный проект с мансардой: эффективное использование пространства и дополнительные возможности для планировки.

Компания «Бриарей» предлагает профессиональное строительство домов из бруса. Мы используем только качественные материалы и современные технологии, чтобы гарантировать долговечность и надёжность наших объектов.

Проект дома из бруса ДБ-15 — это гармония функциональности, эстетики и комфорта. Создайте своё идеальное жильё с «Бриарей»!

Удалить товар

Вы точно хотите удалить выбранный товар? Отменить данное действие будет невозможно.