Проект дома из бруса ДП-104 (114 М.КВ.)

Построим дом из бруса в Московской и Тверской областях

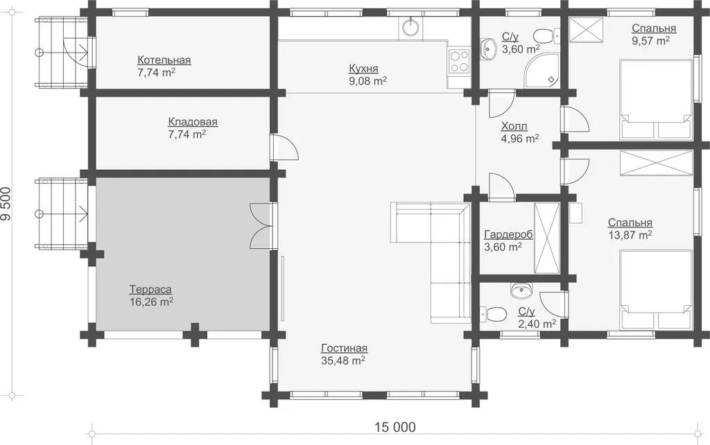
Проект одноэтажного дома из бруса с терассой

Предлагаем вам ознакомиться с проектом одноэтажного дома из бруса ДП-104. Этот проект подойдёт тем, кто ценит комфорт и практичность в планировке жилого пространства.

Основные характеристики:

  • Площадь: 114,3 м².
  • Размеры дома: 9,5 х 15,0 м.
  • Этажность: 1 этаж.
  • Количество спален: 2.
  • Количество сан. узлов: 2.

Этот дом станет уютным местом для вашей семьи. Он имеет продуманную планировку, которая позволяет использовать каждый метр пространства с пользой. Две спальни и два санузла обеспечат комфорт всем членам семьи, а большая площадь дома позволит обустроить дополнительные зоны отдыха или рабочие места.

Если вы ищете практичный и функциональный проект дома из бруса, то ДП-104 — это отличный выбор.

Удалить товар

Вы точно хотите удалить выбранный товар? Отменить данное действие будет невозможно.