8 800 707-80-78
8 919 068-56-27
Напишите нам
callback_icon
Получить смету
Меню
Главная
Каталог проектов
Фотогалерея
Услуги
Контакты
Видео
Отзывы и комментарии
Статьи
Наши награды
Каталог проектов
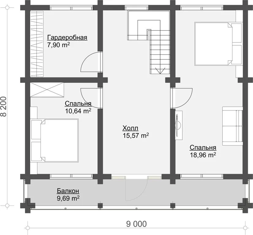
Проект дома из бруса ДП-125 (125 М.КВ.)
Построим дом из бруса в Московской и Тверской областях
Проект двухэтажного дома из бруса с терассой
Получить подробную смету