Проект дома из бруса ДП-149 (149 М.КВ.)

Построим дом из бруса в Московской и Тверской областях

Проект двухэтажного дома из бруса с терассой

Ищете просторный и уютный дом для вашей семьи?

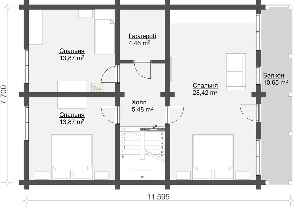
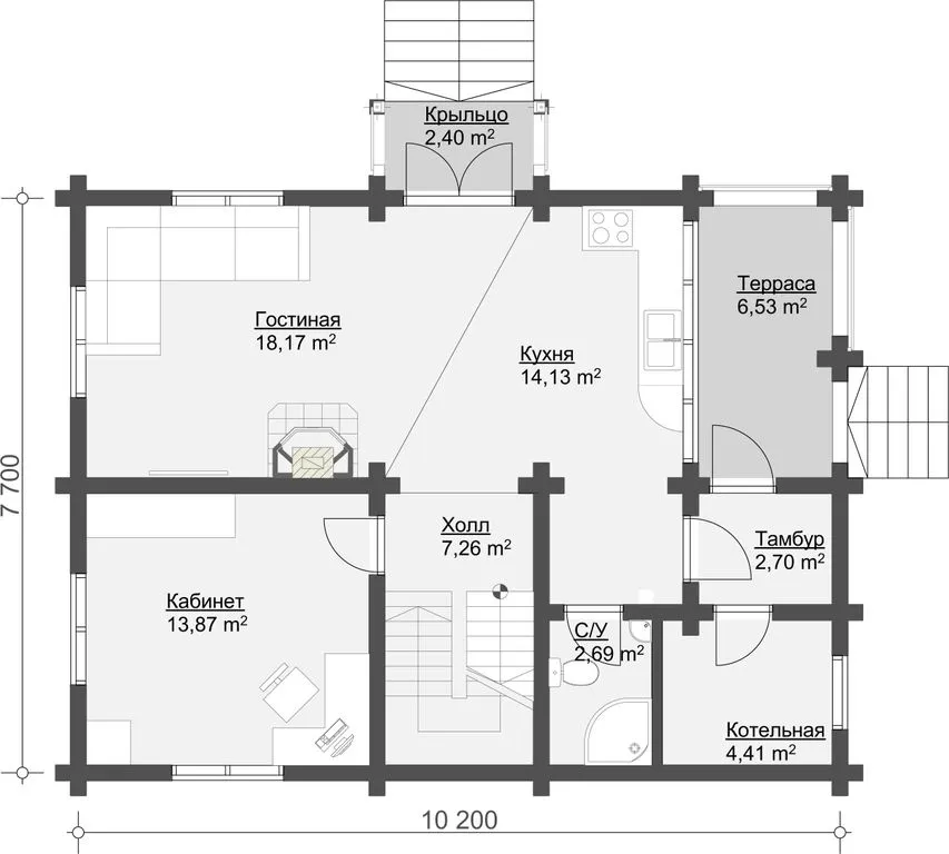
Обратите внимание на проект дома из бруса ДП-149 от компании «Бриарей». Этот двухэтажный дом имеет общую площадь 149 квадратных метров и размеры 10,2 х 7,7 метров. В нём есть всё необходимое для комфортного проживания: три спальни и один санузел. А также в проект входят терраса, балкон и мансарда.

Основные характеристики проекта:

  • Общая площадь: 149 м².
  • Размеры дома: 10,2 x 7,7 м.
  • Этажность: 2 этажа.
  • Количество спален: 3.
  • Количество санузлов: 1.
  • В проект входят: терраса, мансарда, балкон.

Этот проект идеально подойдёт тем, кто ценит простор, комфорт и уют. Дом из бруса — это экологичное и долговечное решение для вашего жилья. Он прекрасно сохраняет тепло зимой и прохладу летом, создавая оптимальный микроклимат внутри помещения.

Если вы хотите узнать больше о проекте дома из бруса ДП-149 или заказать строительство дома по этому проекту, свяжитесь с нами.

Мы готовы предложить вам лучшие условия и гарантировать высокое качество работы.