Проект дома ДП-202 (217 М.КВ.)

Построим дом из бруса в Московской и Тверской областях

Проект двухэтажного дома из бруса с терассой

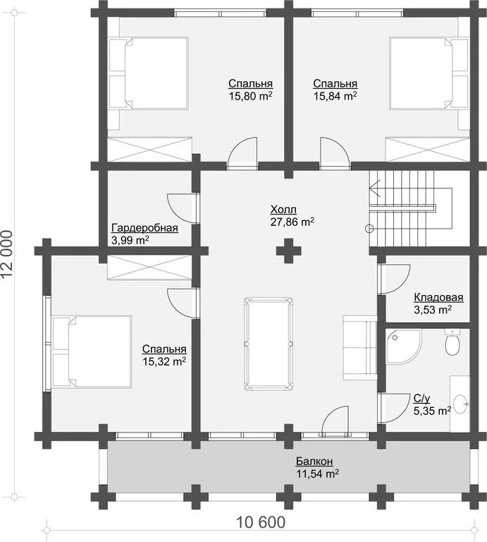
Проект дома из бруса ДП-202 — это идеальное решение для большой семьи.

В доме предусмотрены 4 спальни и 2 санузла, а его общая площадь составляет 217 м².

Размер дома — 11,7 х 12 метров.

Дом имеет два этажа, включая мансарду, и оборудован террасой и балконом

Удалить товар

Вы точно хотите удалить выбранный товар? Отменить данное действие будет невозможно.