Проект дома из бруса ДП-225 (225 М.КВ.)

Построим дом из бруса в Московской и Тверской областях

Проект двухэтажного дома из бруса с терассой и балконом

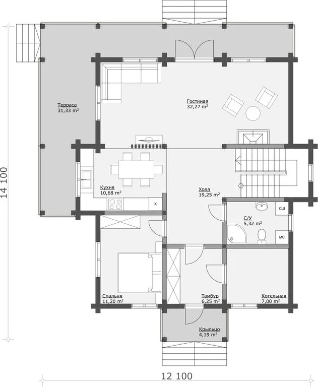
Двухэтажный дом из бруса ДП-225 — это идеальное решение для большой семьи.

В нём пять спален и два санузла, а его общая площадь составляет 225 квадратных метров. Дом имеет мансарду, террасу и балкон.

Основные характеристики:

  • Общая площадь: 225 $м^2$;
  • Этажность: 2 этажа;
  • Мансарда: есть;
  • Терраса: есть;
  • Балкон: есть;
  • Количество спален: 5;
  • Количество санузлов: 2.

Этот проект сочетает в себе комфорт, функциональность и эстетическую привлекательность.

Он станет прекрасным местом для отдыха и проживания.

Удалить товар

Вы точно хотите удалить выбранный товар? Отменить данное действие будет невозможно.