Проект дома из бруса ДП-82 (95 М.КВ.)

Построим дом из бруса в Московской и Тверской областях

Проект деревянного дома из бруса с мансардным этажом.

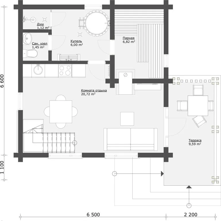
Дом по этому проекту подходит для строительства на дачном приусадебном участке. Планировка первого этажа состоит из комнаты отдыха с кухней, зоны парной, лестницы на мансардный этаж и террасы – идеальное решение для любителей банного отдыха.

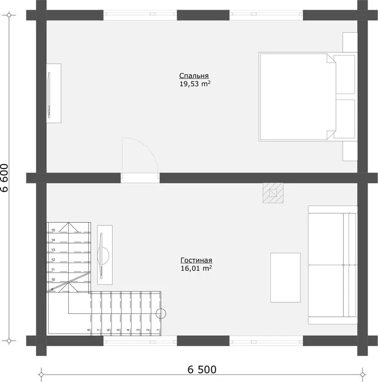
На мансардном этаже расположены гостиная и спальня. Архитектура фасадов пропорциональна и симметрична, выполнена в современных тенденциях деревянного домостроения.

В этом дачном доме комфортно отдыхать и проводить различные торжества и семейные мероприятия в любое время года. Пространство организовано компактно, создавая уют в каждом уголке дома.

Дом по этому проекту подарит своим владельцам полноценный отдых в кругу близких и друзей.


  • Этажность: 2 этажа
  • Общая площадь: 95 м2
  • Мансарда: есть
  • Терраса: есть


Удалить товар

Вы точно хотите удалить выбранный товар? Отменить данное действие будет невозможно.